令和8年3月16日 20時53分 更新
次回更新予定日:令和8年3月17日
山手線 池袋駅の店舗 賃貸物件詳細情報
プロフ
HP物件公開数 9459件
取扱物件数 9727件
お気軽にお問い合わせ下さい。
03-5953-6696
メールはこちら
有限会社 コンパス
トップページへ
閉じる
希望条件登録フォームへ
物件コード
4460
交通
山手線 池袋駅 徒歩2分
住所
豊島区西池袋3丁目
タイプ
店舗
階/階建
5/7
家賃
¥550,000
共益費
¥55,000
礼金
敷金
6ヶ月
保証金
敷引
2ヶ月
面積
96.25m
2
取引態様
仲介
構造
鉄筋コンクリート造
火災保険
要加入
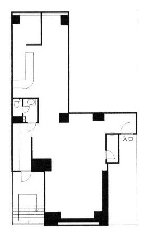
間取
間取詳細
29.11坪
築年月
H05/10
向き
契約期間
3年
駐車場料金
入居費用
¥4,482,500
入居時期
即入居
特色
50万台、29坪店舗、エレベーター、トイレ、洗面台、現況トレカショップ居抜きです、飲食店のみ相談できます
詳細
掲載されている物件データが現況と異なる場合は現況を優先します
■カテゴリから検索■
池袋賃貸店舗
|
池袋賃貸店舗西口
|
池袋賃貸店舗30万〜50万台
|
池袋賃貸店舗10坪〜20坪台
|
池袋賃貸飲食可・相談