| 物件コード |
10117 |
| 交通 |
山手線 池袋駅 徒歩8分 有楽町線 東池袋駅 徒歩1分 |
住所 |
豊島区東池袋4丁目 |
| タイプ |
マンション |
階/階建 |
6/42 |
| 家賃 |
¥270,000 |
共益費 |
¥19,000 |
| 礼金 |
2ヶ月 |
敷金 |
2ヶ月 |
| 保証金 |
|
敷引 |
|
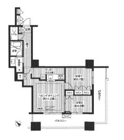
| 面積 |
58.99m2 |
取引態様 |
|
| 構造 |
鉄骨鉄筋コンクリート造 |
火災保険 |
|
| 間取 |
2LDK |
間取詳細 |
洋5.7・4.9LDK11.2 |
| 築年月 |
H19/01 |
向き |
南西 |
| 契約期間 |
2年 |
駐車場料金 |
|
| 入居費用 |
¥1,652,500 |
入居時期 |
即入居 |
| 特色 |
20万台、2LDKマンション、エレベーター、エアコン、収納、ガスキッチン、バストイレ別、独立洗面台、室内洗濯機置場、洋室、バルコニー、追焚バス、システムキッチン、インターホン、宅配ボックス、二階以上、角部屋 |
| 詳細 |
|
| 掲載されている物件データが現況と異なる場合は現況を優先します |