令和8年5月30日 20時14分 更新
次回更新予定日:令和8年5月31日
山手線 池袋駅の事務所 賃貸物件詳細情報
プロフ
HP物件公開数 9558件
取扱物件数 9826件
お気軽にお問い合わせ下さい。
03-5953-6696
メールはこちら
有限会社 コンパス
トップページへ
閉じる
希望条件登録フォームへ
物件コード
10311
交通
山手線 池袋駅 徒歩6分
住所
豊島区池袋2丁目
タイプ
事務所
階/階建
4/12
家賃
¥202,400
共益費
¥17,600
礼金
1ヶ月
敷金
4ヶ月
保証金
敷引
面積
51.6m
2
取引態様
仲介
構造
鉄骨鉄筋コンクリート造
火災保険
要加入
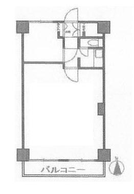
間取
2K
間取詳細
15.61坪
築年月
S59
向き
契約期間
定期借家
駐車場料金
入居費用
¥1,444,520
入居時期
特色
20万台、15坪事務所、エアコン、トイレ、キッチン、エレベーター、南向き、電話5回線可、光ファイバー、CATV、BS、セコム機械警備、劇場通り面す
詳細
掲載されている物件データが現況と異なる場合は現況を優先します
■カテゴリから検索■
池袋賃貸24時間使用可
|
池袋賃貸事務所
|
池袋賃貸事務所西口
|
池袋賃貸事務所10万〜20万台
|
池袋賃貸事務所10坪〜20坪台