平成29年1月28日 11時12分 更新
次回更新予定日:平成29年1月29日
山手線 池袋駅の事務所 賃貸物件詳細情報
プロフ
HP物件公開数 5000件
取扱物件数 5348件
お気軽にお問い合わせ下さい。
03-5953-6696
メールはこちら
有限会社 コンパス
トップページへ
閉じる
希望条件登録フォームへ
物件コード
3296
交通
山手線 池袋駅 徒歩6分
住所
豊島区東池袋1丁目
タイプ
事務所
階/階建
10/10
家賃
¥180,000
共益費
¥20,000
礼金
1ヶ月
敷金
保証金
5ヶ月
敷引
1ヶ月
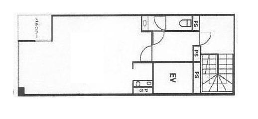
面積
50.97m
2
取引態様
仲介
構造
鉄骨造
火災保険
要加入
間取
1R
間取詳細
15.42坪
築年月
向き
契約期間
2年
駐車場料金
入居費用
¥1,469,000
入居時期
即入居
特色
18万台(税別)、15坪店舗事務所、エレベーター、エアコン、キッチン、トイレ、洗面台、ワンフロアーに一室、繁華街近く、業種相談できます
詳細
掲載されている物件データが現況と異なる場合は現況を優先します
■カテゴリから検索■
池袋賃貸事務所
|
池袋賃貸事務所東口
|
池袋賃貸事務所10万〜20万台
|
池袋賃貸事務所10坪〜20坪台