物件コード
間取画像
駅名
写真画像
徒歩
バス
タイプ
間取
住所1 家賃
共益費
面積m2
間取詳細
階/階建
向き
礼金
敷金
保証金
敷引
詳細 画像
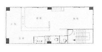
2197
間取あり
池袋駅
写真あり
6分
 
店舗事務所
1R
豊島区池袋2丁目 ¥383,660
¥119,500
99m2
29.95坪
6/10
 
 
10ヶ月
 
 
物件コード 2197の詳細ページへ 間取あり 写真あり
30万台、約30坪、エレベーター、エアコン、男女別トイレ、洗面台、ワンフロアーに一室、美容・サロン・スクール・学校・教室相談できます、劇場通り面す
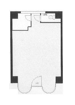
2198
間取あり
池袋駅
写真あり
6分
 
店舗事務所
1R
豊島区池袋2丁目 ¥383,660
¥119,500
99m2
 
8/10
 
 
10ヶ月
 
 
物件コード 2198の詳細ページへ 間取あり 写真あり
30万台、約30坪、エレベーター、エアコン、男女別トイレ、洗面台、ワンフロアーに一室、美容・サロン・スクール・学校・教室相談できます、劇場通り面す
4158
間取あり
池袋駅
 
3分
 
マンション
 
豊島区南池袋3丁目 ¥383,800
--
92.98m2
28.12坪
B1/8
 
2ヶ月
 
6ヶ月
 
物件コード 4158の詳細ページへ 間取あり
30万台、28坪店舗、エレベーター、厨房、男女別トイレ、飲食店舗居抜き、東通り近く
2288
間取あり
池袋駅
写真あり
1分
 
店舗事務所
1R
豊島区西池袋1丁目 ¥383,880
¥53,000
60.42m2
18.28坪
6/9
 
 
 
12ヶ月
 
物件コード 2288の詳細ページへ 間取あり 写真あり
30万台、18坪、エレベーター、スケルトン、美容室など最適です、駅前西口ロータリー近く
2330
間取あり
池袋駅
写真あり
3分
 
店舗
1R
豊島区東池袋1丁目 ¥384,000
¥3,000
79.33m2
24坪
5/6
 
1ヶ月
 
500万円
30%
物件コード 2330の詳細ページへ 間取あり 写真あり
30万台(税別)、24坪店舗、スケルトン、エレベーター、サンシャイン通り・東急ハンズ近く、飲食可・重飲食相談できます
1819
 
池袋駅
 
3分
 
店舗
1R
豊島区西池袋3丁目 ¥385,000
--
135.53m2
41坪
3/6
 
 
 
20% 御成約頂きました。  
30万台、41坪、プールバー(ビリヤード)居抜き、立教大学・通り近く、エレベーター
3522
間取あり
池袋駅
写真あり
3分
 
店舗事務所
1R
豊島区西池袋3丁目 ¥385,000
--
72.72m2
21.99坪
2/4
 
 
8ヶ月
 
20%
御成約頂きました。 間取あり 写真あり
30万台、約22坪店舗、男女別トイレ、経〜飲食可、ワンフロア一室、現況飲食店造作有ります!、丸井・劇場通り近く、駅まで3分
5617
間取あり
池袋駅
 
13分
 
店舗
1R
豊島区西池袋5丁目 ¥385,000
--
44.45m2
13.44坪
1/7
 
3ヶ月
 
10ヶ月
2ヶ月
物件コード 5617の詳細ページへ 間取あり
30万台(税別)、13坪店舗、1階路面、トイレ、洗面台、現況美容室の居抜きです(床屋・千円カットなど)、造作譲渡有80万、飲食店相談出来ます、大通り面す、有楽町線要町駅徒歩1分
877
間取あり
池袋駅
 
4分
 
店舗事務所
1R
豊島区西池袋3丁目 ¥388,500
--
86.94m2
19.66坪
6/8
 
1ヶ月
 
233万円
2ヶ月
物件コード 877の詳細ページへ 間取あり
38万台、26坪店舗事務所、エレベーター、トイレ、洗面台、立教大学通り近く
3083
間取あり
池袋駅
写真あり
2分
 
店舗
 
豊島区池袋2丁目 ¥388,800
¥37,800
42.65m2
12.9坪
4/5
 
2ヶ月
 
6ヶ月
2ヶ月
物件コード 3083の詳細ページへ 間取あり 写真あり
30万台、約13坪店舗、エレベーター、キッチン、トイレ、カウンター、イス、ソファー、テーブル、二層シンク、ガスキッチン2口、コールドテーブル、スナック・バー・クラブ居抜き、繁華街面す、劇場通り近く
4487
間取あり
池袋駅
 
4分
 
店舗
1R
豊島区池袋2丁目 ¥388,800
¥43,200
77.62m2
23.5坪
2/10
 
 
 
8ヶ月
2ヶ月
物件コード 4487の詳細ページへ 間取あり
30万台、23坪店舗、エレベーター、トイレ、スケルトン、医科・クリニック限定、商店街面す
4524
間取あり
池袋駅
 
4分
 
店舗
1R
豊島区池袋2丁目 ¥388,800
¥43,200
80.87m2
24.5坪
2/10
 
 
 
8ヶ月
2ヶ月
物件コード 4524の詳細ページへ 間取あり
30万台、23坪店舗、エレベーター、トイレ、スケルトン、医科・クリニック限定、商店街面す
4892
 
池袋駅
 
2分
 
店舗
 
豊島区西池袋1丁目 ¥388,800
--
42.61m2
12.89坪
1/7
 
 
 
12ヶ月
20%
御成約頂きました。  
30万台、12坪店舗、エアコン、トイレ、1階路面、繁華街面す、物販・サービス系店舗向き
1138
間取あり
池袋駅
写真あり
3分
 
店舗
 
豊島区池袋2丁目 ¥389,970
¥74,094
61.39m2
18.57坪
5/6
 
2ヶ月
 
180万円
20%
御成約頂きました。 間取あり 写真あり
30万台、18坪店舗、エレベーター、トイレ、キッチン、洗面台、飲食可、風俗・何業相談できます、短期解約償却30%、セコム10500、看板10500、金融不可、トキワ通り近く
1995
間取あり
池袋駅
写真あり
2分
 
店舗
 
豊島区南池袋3丁目 ¥390,000
¥60,000
96m2
29.04坪
B1/7
 
 
 
10ヶ月
2ヶ月
物件コード 1995の詳細ページへ 間取あり 写真あり
30万台(税別)、29坪店舗、地下一階、エレベーター、現況飲食店の居抜きです、丸井・東京芸術劇場・西口公園近く
3833
間取あり
池袋駅
写真あり
4分
 
店舗
 
豊島区池袋2丁目 ¥390,000
¥28,000
47.43m2
14.35坪
5/5
 
2ヶ月
 
200万円
2ヶ月
御成約頂きました。 間取あり 写真あり
14坪、30万台店舗、エレベーター、厨房、トイレ、カウンター、ボックス席、テーブル、リース店舗、キャバ・ホスト・クラブ居抜き、劇場通り近く、繁華街面す
1770
間取あり
池袋駅
写真あり
2分
 
店舗事務所
1R
豊島区池袋2丁目 ¥390,117
¥90,027
94.47m2
28.58坪
3/7
 
 
 
10ヶ月
15%
物件コード 1770の詳細ページへ 間取あり 写真あり
28坪、30万台、エレベーター、エアコン、トイレ、給湯室、ロサ会館近く、エステティックサロン・マッサージなどの店舗利用相談できます
1771
間取あり
池袋駅
写真あり
2分
 
店舗事務所
1R
豊島区池袋2丁目 ¥390,117
¥90,027
94.47m2
28.58坪
4/7
 
 
 
10ヶ月
15%
物件コード 1771の詳細ページへ 間取あり 写真あり
28坪、30万台、エレベーター、エアコン、トイレ、給湯室、ロサ会館近く、エステティックサロン・マッサージなどの店舗利用相談できます
5649
間取あり
池袋駅
 
6分
 
店舗事務所
 
豊島区池袋1丁目 ¥390,744
¥39,074
59.79m2
18.09坪
1/8
 
2ヶ月
 
10ヶ月
20%
物件コード 5649の詳細ページへ 間取あり
30万台、18坪店舗事務所、1階路面、飲食店可(重飲食相談)、商店街面す、2016年新築
4017
間取あり
池袋駅
 
2分
 
店舗
 
豊島区西池袋1丁目 ¥392,500
--
42.64m2
12.89坪
1/7
 
 
 
12ヶ月
20%
物件コード 4017の詳細ページへ 間取あり
12坪、30万台店舗、エアコン、キッチン、トイレ、洗面台、1階路面、繁華街面す、ネイル・エステ・飲食店不可です