物件コード
間取画像
駅名
写真画像
徒歩
バス
タイプ
間取
住所1 家賃
共益費
面積m2
間取詳細
階/階建
向き
礼金
敷金
保証金
敷引
詳細 画像
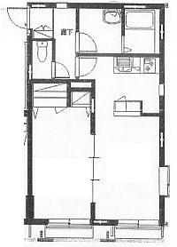
1339
間取あり
池袋駅
 
6分
 
マンション
1LDK
豊島区池袋2丁目 ¥110,000
¥8,000
41.83m2
和室6帖LDK10帖
3/10
0ヶ月
1ヶ月
0万円
物件コード 1339の詳細ページへ 間取あり
11万台、エレベーター、エアコン、収納、ガスキッチン2口可、バストイレ別、室内洗濯機置場、フローリング、二階以上、インターネット対応、東北角部屋、、ルームシェア友人同士可、ペット小型犬のみ可+敷金2償却1
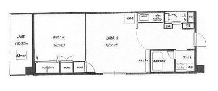
3105
間取あり
池袋駅
写真あり
10分
 
マンション
1R
豊島区池袋3丁目 ¥110,000
¥7,000
32.05m2
洋10.51
2/4
0ヶ月
1ヶ月
 
 
物件コード 3105の詳細ページへ 間取あり 写真あり
11万台、1Rマンション、オートロック、エアコン、収納ウォークインクローゼット、バストイレ別、独立洗面台、室内洗濯機置場、洋室、フローリング、二階以上、角部屋、宅配ボックス、インターネット対応、CATV、温水洗浄便座、外観コンクリート打ちっぱなし、デザイナーズマンション
1755
間取あり
池袋駅
 
12分
 
マンション
1R
豊島区上池袋3丁目 ¥112,000
¥6,000
29.46m2
洋10.6帖
5/13
南東
0ヶ月
1ヶ月
0万円
0ヶ月
物件コード 1755の詳細ページへ 間取あり
11万台、1R、オートロック、エレベーター、エアコン、収納、ガスキッチン2口、独立洗面台、室内洗濯機置場、浴室乾燥機、バルコニー、二階以上、宅配ボックス、TVインターホン、インターネット対応Bフレッツ、駐輪場3,150/月、CATV、ウォシュレット、ペット相談小型犬・猫1匹+礼1敷2
2804
間取あり
池袋駅
写真あり
9分
 
マンション
1K
豊島区南池袋1丁目 ¥112,000
¥5,000
30.21m2
 
4/7
 
0ヶ月
1ヶ月
 
 
御成約頂きました。 間取あり 写真あり
11万台、1Kマンション、オートロック、エレベーター、エアコン、収納、ガスキッチン、バストイレ別、独立洗面台、室内洗濯機置場、洋室、フローリング、バルコニー、二階以上、礼金ゼロ
3106
間取あり
池袋駅
写真あり
10分
 
マンション
1R
豊島区池袋3丁目 ¥112,000
¥7,000
32.05m2
洋10.51
4/4
0ヶ月
1ヶ月
 
 
物件コード 3106の詳細ページへ 間取あり 写真あり
12万台、1Rマンション、オートロック、エアコン、収納ウォークインクローゼット、バストイレ別、独立洗面台、室内洗濯機置場、洋室、フローリング、二階以上、角部屋、宅配ボックス、インターネット対応、CATV、温水洗浄便座、外観コンクリート打ちっぱなし、デザイナーズマンション
847
間取あり
池袋駅
写真あり
6分
 
マンション
2DK
豊島区池袋2丁目 ¥115,000
¥8,000
41.83m2
DK6.0、和6.0、洋6.0
3/10
 
 
1ヶ月
 
 
物件コード 847の詳細ページへ 間取あり 写真あり
11万台、エアコン、収納、ガスキッチン、バストイレ別、室内洗濯機置場、独立洗面台、洋室、フローリング、バルコニー、エレベータ、二階以上、角部屋、インターネット対応、友人同士可
1453
間取あり
池袋駅
写真あり
14分
 
マンション
1LDK
豊島区池袋本町2丁目 ¥115,000
¥10,000
45.77m2
洋6帖LDK10.3帖
3/5
0ヶ月
2ヶ月
0ヶ月
1ヶ月
物件コード 1453の詳細ページへ 間取あり 写真あり
11万台、オートロック、外観タイル、エレベーター、収納、ガスキッチン3口、バストイレ別、独立洗面台、室内洗濯機置場、洋室、フローリング、システムキッチン、角部屋、二階以上、バルコニー、インターホン、インターネット対応、駐輪場、敷地内駐車場相談
2763
間取あり
池袋駅
写真あり
5分
 
マンション
1K
豊島区南池袋1丁目 ¥115,000
--
28.28m2
洋9帖K
5/5
南西
0ヶ月
1ヶ月
 
 
物件コード 2763の詳細ページへ 間取あり 写真あり
11万台、1Kマンション、オートロック、外観タイル、エレベーター、エアコン、収納、ガスキッチン2口可、バストイレ別、室内洗濯機置場、洋室、フローリング、ルーフバルコニー、二階以上、東南角部屋、インターネット対応、BS、礼金ゼロ0
5016
間取あり
池袋駅
写真あり
5分
 
マンション
1DK
豊島区西池袋3丁目 ¥115,000
¥4,000
31.51m2
洋6DK8.3
10/11
 
1ヶ月
1ヶ月
 
 
物件コード 5016の詳細ページへ 間取あり 写真あり
11万台、1DK分譲マンション、オートロック、外観タイル、エレベーター、エアコン、収納、システムキッチンガス3口、バストイレ別、独立洗面台、室内洗濯機置場、追焚バス、バルコニー、フローリング、洋室、インターホン、宅配ボックス、二階以上、インターネット対応、CATV、駐輪場、南西向き目の前公園日当り良好、立教大学近く
1756
間取あり
池袋駅
 
12分
 
マンション
1R
豊島区上池袋3丁目 ¥116,000
¥6,000
29.46m2
洋10.6帖
13/13
南東
0ヶ月
1ヶ月
0万円
0ヶ月
物件コード 1756の詳細ページへ 間取あり
11万台、1R、オートロック、エレベーター、エアコン、収納、ガスキッチン2口、独立洗面台、室内洗濯機置場、浴室乾燥機、バルコニー、二階以上、宅配ボックス、TVインターホン、インターネット対応Bフレッツ、駐輪場3,150/月、CATV、ウォシュレット、ペット相談小型犬・猫1匹+礼1敷2
2933
間取あり
池袋駅
写真あり
5分
 
マンション
1K
豊島区南池袋2丁目 ¥116,000
¥6,000
29.73m2
洋8.4K
6/11
南東
0ヶ月
2ヶ月
 
 
物件コード 2933の詳細ページへ 間取あり 写真あり
11万台、1kマンション、オートロック、外観タイル、エレベーター、エアコン、収納、ガスキッチン2口、、バストイレ別、独立洗面台、室内洗濯機置場、洋室、フローリング、バルコニー、追焚バス、二階以上、インターホン、インターネット対応、浴室乾燥機、、宅配ボックス、防犯カメラ、ウォシュレット、南池袋公園近く環境良好、大勝軒・サンシャイン・東急ハンズ近く、礼金0キャンペーン
2013
間取あり
池袋駅
写真あり
8分
 
マンション
1LDK
豊島区池袋1丁目 ¥117,000
¥4,000
39.2m2
洋6.5LDK9.5
2/3
0ヶ月
2ヶ月
 
 
物件コード 2013の詳細ページへ 間取あり 写真あり
11万台、1LDK、オートロック、エアコン、収納、システムキッチン、バストイレ別、独立洗面台、室内洗濯機置場、洋室、フローリング、バルコニー、二階以上、南西角部屋、インターネット対応、浴室乾燥機、礼金0、、バイク置場有ります2千/月
1758
間取あり
池袋駅
 
12分
 
マンション
1R
豊島区上池袋3丁目 ¥118,000
¥6,000
30.65m2
洋12.2帖
12/13
南東
0ヶ月
1ヶ月
0万円
0ヶ月
物件コード 1758の詳細ページへ 間取あり
11万台、1R、オートロック、エレベーター、エアコン、収納、ガスキッチン2口、独立洗面台、室内洗濯機置場、浴室乾燥機、バルコニー、二階以上、宅配ボックス、TVインターホン、インターネット対応Bフレッツ、駐輪場3,150/月、CATV、ウォシュレット、ペット相談小型犬・猫1匹+礼1敷2
3403
間取あり
池袋駅
写真あり
5分
 
マンション
1K
豊島区南池袋2丁目 ¥119,000
¥6,000
29.73m2
洋8.4K
9/11
南東
0ヶ月
2ヶ月
 
 
物件コード 3403の詳細ページへ 間取あり 写真あり
11万台、1Kマンション、オートロック、外観タイル、エレベーター、エアコン、収納、ガスキッチン2口、、バストイレ別、独立洗面台、室内洗濯機置場、洋室、フローリング、バルコニー、追焚バス、二階以上、インターホン、インターネット対応、浴室乾燥機、、宅配ボックス、防犯カメラ、ウォシュレット、南池袋公園近く環境良好、大勝軒・サンシャイン・東急ハンズ近く、礼金0キャンペーン
2014
間取あり
池袋駅
写真あり
8分
 
マンション
1LDK
豊島区池袋1丁目 ¥120,000
¥4,000
42.1m2
洋6.5LDK11
2/3
0ヶ月
2ヶ月
 
 
物件コード 2014の詳細ページへ 間取あり 写真あり
12万台、1LDK、オートロック、エアコン、収納、システムキッチン、バストイレ別、独立洗面台、室内洗濯機置場、洋室、フローリング、バルコニー、二階以上、東南角部屋、インターネット対応、浴室乾燥機、礼金0、、バイク置場有ります2千/月
1827
間取あり
池袋駅
写真あり
11分
 
マンション
2DK
豊島区雑司が谷3丁目 ¥125,000
¥10,000
52.55m2
洋9・6.5DK9
10/11
西
0ヶ月
1ヶ月
0ヶ月
0ヶ月
物件コード 1827の詳細ページへ 間取あり 写真あり
12万台、2DK、外観タイル、エレベーター、エアコン、収納、室内洗濯機置場、バストイレ別、洋室、バルコニー、南西角部屋、二階以上、インターネット対応、CATV
1905
間取あり
池袋駅
写真あり
15分
 
マンション
1LDK
豊島区東池袋4丁目 ¥125,000
--
38.88m2
1LDK
3/3
 
0ヶ月
2ヶ月
 
 
物件コード 1905の詳細ページへ 間取あり 写真あり
12万台、1LDK、エアコン2基、ガスキッチン2口、バストイレ別?、室内洗濯機置場、洋室、フローリング(メープル材)、、二階以上、角部屋、BS、CS、CATV、インターネット対応、TVインターホン、礼金ゼロ
2875
間取あり
池袋駅
写真あり
9分
 
マンション
1LDK
豊島区池袋4丁目 ¥125,000
¥10,000
47.17m2
洋6・5LDK11
6/6
南東
0ヶ月
2ヶ月
 
 
物件コード 2875の詳細ページへ 間取あり 写真あり
12万台、1LDKマンション、エレベーター、エアコン、収納、ガスキッチン、バストイレ別、室内洗濯機置場、独立洗面台、洋室、バルコニー、二階以上、更新料無し、インターネット対応、CATV、駐輪場、TVインターホン
3053
間取あり
池袋駅
写真あり
5分
 
マンション
1DK
豊島区西池袋3丁目 ¥125,000
--
31.51m2
洋6DK8.3
4/11
 
1ヶ月
1ヶ月
 
 
物件コード 3053の詳細ページへ 間取あり 写真あり
12万台、1DK分譲マンション、オートロック、外観タイル、エレベーター、エアコン、収納、システムキッチンガス3口、バストイレ別、独立洗面台、室内洗濯機置場、追焚バス、バルコニー、フローリング、洋室、インターホン、宅配ボックス、二階以上、インターネット対応、CATV、駐輪場、南西向き目の前公園日当り良好、立教大学近く
5112
間取あり
池袋駅
写真あり
5分
 
マンション
1DK
豊島区西池袋3丁目 ¥125,000
¥4,000
34.02m2
洋6DK8.3
10/11
 
1ヶ月
2ヶ月
 
 
物件コード 5112の詳細ページへ 間取あり 写真あり
12万台、1DK分譲マンション、オートロック、外観タイル、エレベーター、エアコン、収納、システムキッチンガス3口、バストイレ別、独立洗面台、室内洗濯機置場、追焚バス、バルコニー、フローリング、洋室、インターホン、宅配ボックス、二階以上、インターネット対応、CATV、駐輪場、南向き目の前公園日当り良好、立教大学近く